Instalace ČOV
Pokyny pro montáž ČOV EO 4-20
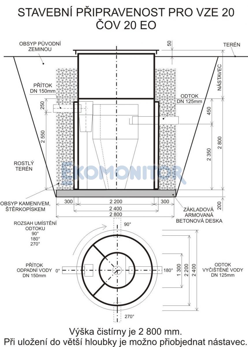
Pokyny pro instalaci ČOV VZE 4-20 pro EO 1-20
ČOV (čistírna odpadních vod) se instaluje vždy bez nadzemní části, krycí víko je mírně vyvýšeno nad okolní terén. ČOV se do připraveného výkopu umístí na pískové lože a po připojení potrubí odpadní vody a vzduchu se obsype tříděným materiálem.
Dmychadlo je umístěno v objektu, a to tak, aby bylo nad hladinou vody v ČOV. V případě, že objekt není podsklepen, lze umístit dmychadlo v nebytových prostorách domu (předsíň, spíž, kotelna, chodba apod.), kde vzhledem ke své velmi malé hlučnosti neruší.
Stavební část:
- Vzdálenost mezi čistírnou odpadních vod a domovní studnou má být minimálně:
12 m v málo propustném zvodněném prostředí
30 m v propustném zvodněném prostředí - V případě, že je čistírna umístěna ve vzdálenosti menší než 20 m od bytové zástavby, musí být odvětrána nad úroveň nejvyššího nadzemního podlaží. Dostatečné odvětrání čistírny je zajištěno, je-li provedeno odvětrání vnitřní kanalizace nad úroveň střechy objektu. V případě, že kanalizace není odvětraná, je nutno provést samostatné odvětrávací potrubí minimální světlosti 70 mm (pro typy VZE 4 a VZE 8), 100 mm (pro typy VZE 12 a VZE 20). Při vzdálenosti čistírny od bytové zástavby větší než 20 m je možno provést odvětrání nástavcem ve výši 1 m. Tento nástavec může být umístěn přímo na víko čistírny.
- Umístění čistírny ve volném terénu je nutno volit s ohledem na vzdálenost od základů budov (min. 5 m), od pojezdu osobních vozidel (min. 2 m) a od pojezdu nákladních vozidel a mechanizace (min. 5 m).
- Před instalací čistírny je nutno provést výkop o velikosti dané základními rozměry čistírny s tím, že nejmenší průměr výkopu musí být minimálně roven průměru ČOV + min. 0,6 m (u dna výkopu).
- Výškové osazení čistírny - hloubka výkopu (viz nákres stavební připravenosti) je závislá na hloubce uložení přítokové kanalizace pod terénem a s ohledem na gravitační odtok vyčištěných vod.
- Na upravené dno výkopu je třeba provést armovanou betonovou desku tl. min. 150 mm, která musí být bez výstupků a jejíž odchylka od roviny nepřesáhne hodnotu 5mm/2m.
- V případě kladného výsledku zkoušky těsnosti nádrže ČOV je možno provést obsyp pláště čistírny. Obsyp se provádí vždy při naplněné nádrži rovnoměrně po celém obvodu kamenivem frakce 0/32 (8/16)mm nebo štěrkopískem, v síle min. 300 mm a po vrstvách výšky 200 mm se provádí dostatečné hutnění obsypu. Pro obsyp není vhodný materiál - písek, zemina, jíly nebo spraše.
- Při napojování gravitační kanalizace je nutné dbát na souosost potrubí a připojovacích hrdel. Po napojení kanalizačního potrubí je nutné zajistit podbetonování potrubí z vnější strany ČOV tak, aby nedošlo při následném obsypu a sedání zásypového materiálu k vylomení hrdla z pláště ČOV.
- Výše uvedený postup stavební připravenosti platí pouze v případě, že dno ČOV je trvale nad úrovní hladiny podzemní vody, výkop pro ČOV není proveden v zemině s nízkou propustností, např. jíly, spraše a hlíny s vysokou plasticitou nebo výkop není proveden v nedostatečně slehlé navážce.
- V případě výskytu podzemní vody nebo uložení do zeminy s nízkou propustností je stavební připravenost nutno řešit se statikem nebo zpracovat v realizačním projektu stavby ČOV. Způsob osazení čistírny do terénu v tomto případě určí projektant stavby.
- Pro přívodní hadici tlakového vzduchu DN 20-32 mm od dmychadla do ČOV je nutné položit (nejlépe do společného výkopu přívodní kanalizace) chráničku buď z plastu nebo ocelovou. Chráničku je nutné zavést až do ČOV tak, aby nedošlo k seškrcení tlakové hadice při případném sedání zeminy.
- Membránové dmychadlo je nutné umístit mimo objekt ČOV nejlépe do garáže, sklepa, chodby domu apod., a to tak, aby bylo nad hladinou vody v ČOV.
Elektro část
- V místě plánovaného umístění membránového dmychadla instalovat zásuvku 230 V dle platných předpisů.




Pokyny pro montáž ČOV EO 35-125Instalace čističky odpadních vod bude provedena dle platné stavební dokumentace.Stavební část:
a) obsypáním – bez výskytu podzemní vody
b) obetonováním – s výskytem podzemní vody
a) způsob osazení nádrže čistírny - obsypáním
b) způsob osazení nádrže čistírny - obetonováním
Elektro část:
Pokyny pro skladování a přepravu
ČOV:
ČOV válcové pro 0-20 ekvivalentních obyvatel – typová řada:
ČOV hranaté pro 35 – 125 ekvivalentních obyvatel- typová řada:
ČOV | Popis ČOV | Funkce ČOV | Materiálové provedení ČOV | Podmínky pro instalaci ČOV| Pokyny pro provoz ČOV | Objednávka ČOV | Ceník čistirna odpadních vod
- Vzdálenost mezi ČOV a domovní studnou má být minimálně:
- 5 m v málo propustném zvodnělém prostředí
- 12 m v propustném zvodnělém prostředí
- Z jednoho objektu je dostatečné odvětrání ČOV je zajištěno, je-li provedeno odvětrání vnitřní kanalizace nad úroveň střechy objektu. V případě, že se jedná o ČOV pro více objektů je dostatečné odvětrání nutno řešit v projektové dokumentaci.
- Umístění ČOV je nutno volit s ohledem na skutečnost, že je zakázáno vjíždět s vozidly (osobními i nákladními) a těžkou mechanizací do vzdálenosti menší než 2 m od kraje nádrže čistírny.
- Způsoby osazení nádrže ČOV do terénu –
- Výškové osazení ČOV - hloubka výkopu je závislá na hloubce uložení přítokové kanalizace pod terénem s ohledem na gravitační odtok vyčištěných vod do recipientu.
- Zhotovení železobetonové základové desky tloušťky min. 150 mm (dle velikosti nádrže). Rozměry desky jsou dány půdorysnými rozměry nádrže čistírny zvětšené na každé straně o cca 200 mm.
- Před zatuhnutím a vyzráním betonu povrch desky uhladit a vyrovnat na rovinnost 5 mm/2 m v obou na sebe kolmých směrech.
- Na zatuhlou, vyzrálou a očištěnou základovou desku usadit nádrž ČOV.
- Nádrž ČOV začít plnit vodou rovnoměrně ve všech komorách a současně začít nádrž rovnoměrně obsypávat po celém obvodu tříděným materiálem. Po vrstvách tl. 30 cm se provádí hutnění obsypu. Rozdíl mezi výškou hladiny vody a zásypem má být cca 200 až 300 mm.
- Potrubí odpadní vody, přívod vzduchu, odtokové potrubí, popř. odvětrávací potrubí jsou napojována k ČOV postupně při provádění obsypu.
- V případě, že dno nádrže je pod hladinou podzemní vody, je nutno provést takové úpravy stavební části, které eliminují vztlak vody při vyprazdňování ČOV (řeší projektant stavby).
- Nástavec na ČOV a její zastropení je možné řešit v plastovém provedení nebo samostatným stavebním objektem (řeší projektant stavby).
- Pro přívodní hadici tlakového vzduchu DN 32-50 mm od dmychadla do ČOV je nutné položit (nejlépe do společného výkopu přívodní kanalizace) chráničku z plastu nebo provést vlastní plastové potrubí pro tlakový vzduch s pružným napojením na dmychadlo. Případnou chráničku je nutné zavést až do ČOV tak, aby nedošlo k seškrcení tlakové hadice při případném sedání zeminy.
- Membránové dmychadlo je nutné umístit mimo objekt ČOV nejlépe do garáže, sklepa, chodby domu, samostatného objektu apod., a to tak, aby bylo nad hladinou vody v ČOV.
- V místě plánovaného umístění rotačního bezmazého dmychadla instalovat zásuvku 400 V dle platných předpisů.
- Nádrže ČOV jsou vyrobeny z polypropylenu bez stabilizace proti ÚV záření. Nevystavovat je dlouhodobě povětrnostním vlivům.
- Nádrže ČOV skladovat a přepravovat vždy „nastojato“, tedy tak, jak budou stát na místě určení.
- Jakoukoliv manipulaci s nádržemi ČOV provádět pouze do teploty +5°C.